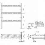
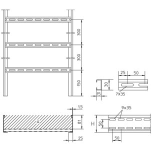
Drabinka kablowa, wysokość=100 mm.
Drabinka kablowa wyposażona w perforowane wzdłużnice oraz zgrzewane szczeble. Szczeble wykonane są z profilu w kształcie litery „C”. Drabinka utrzymuje ciągłość potencjału zgodnie z DIN EN 61537.
Wartość Pmax ma zastosowanie jeżeli drabinka stosowana jest jako drabinka pionowa.














