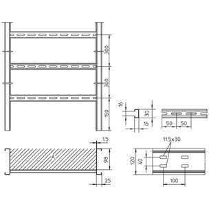
Samonośna drabinka kablowa, wysokość=120 mm.
Samonośna drabinka kablowa wyposażona w perforowane wzdłużnice oraz spawane perforowane szczeble o profilu „C”. Drabinka utrzymuje ciągłość potencjału zgodnie z DIN EN 61537. Produkt dostępny jest w wykonaniu ze stali nierdzewnej, materiał 1.4301 (V2A), oraz ze stali kwasoodpornej, materiał 1.4571 / 1.4404 (V4A), tylko z wzdłużnicą o wysokości bocznej=100 mm.














